Etusivu
»
Pohjakuvat
»
3 mh
»
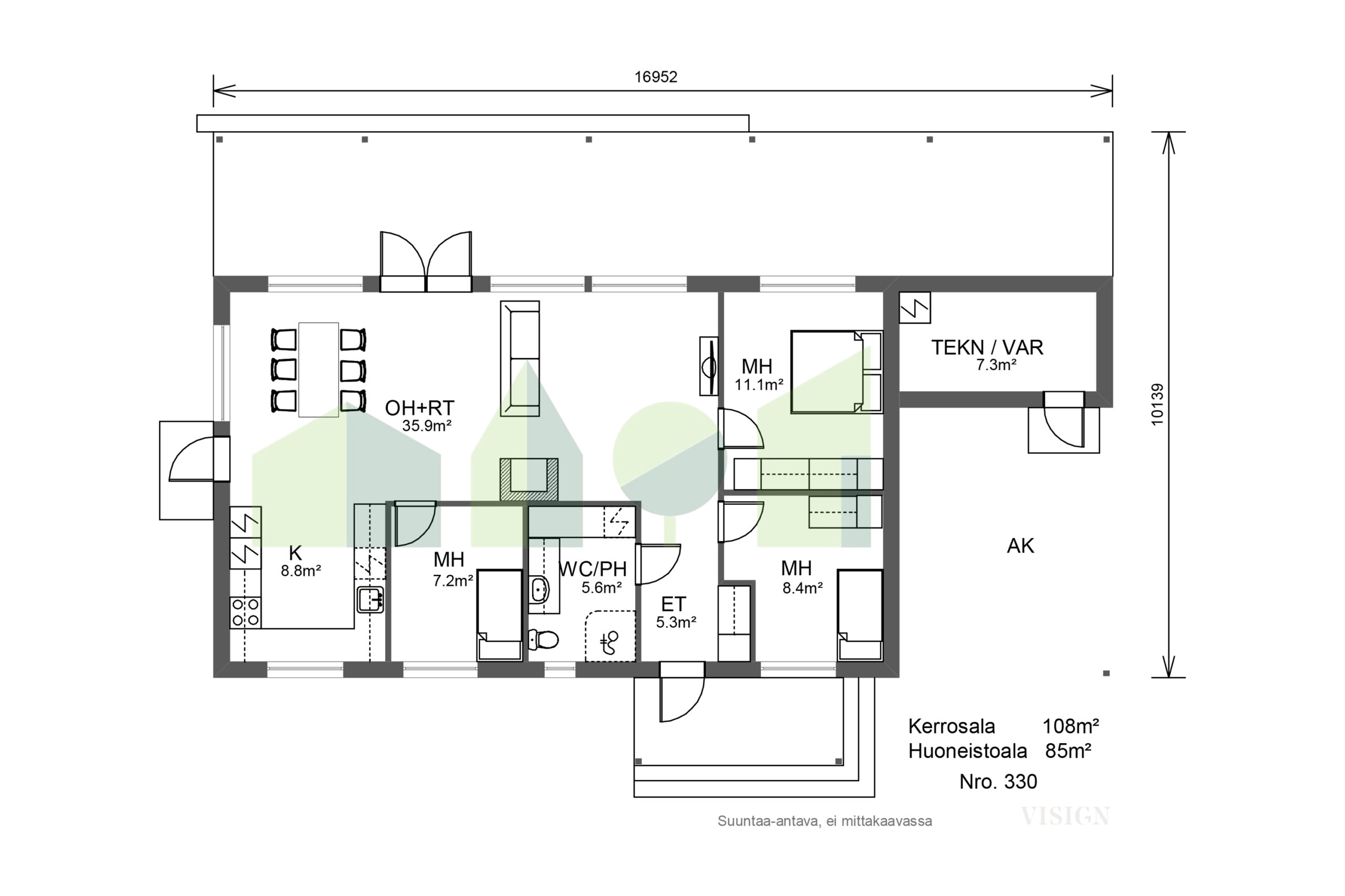
330
330
Tämän kohteen kategoriat:
3 mh
Tämän kohteen avainsanat:
Oleskelutilat päädyssä