Etusivu
»
1,5 krs ja 2 krs
»
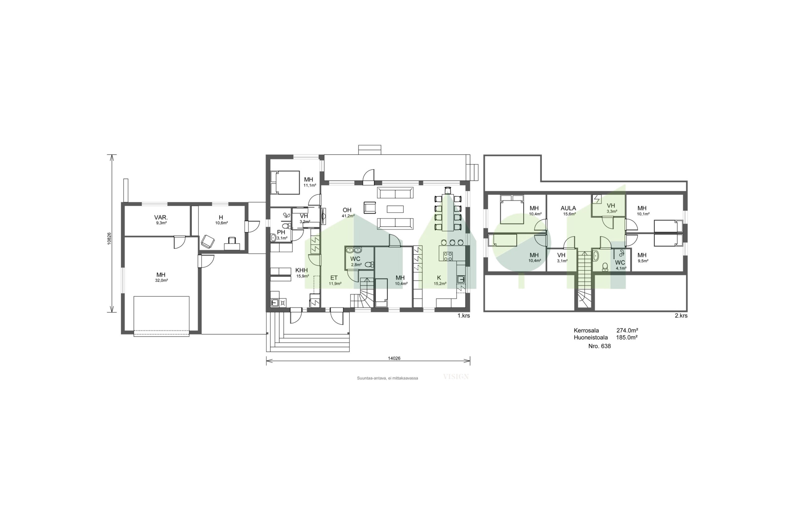
638
638
Tämän kohteen kategoriat:
1,5 krs ja 2 krs
Tämän kohteen avainsanat:
Oleskelutilat päädyssä
Saarekekeittiö
Vaatehuone