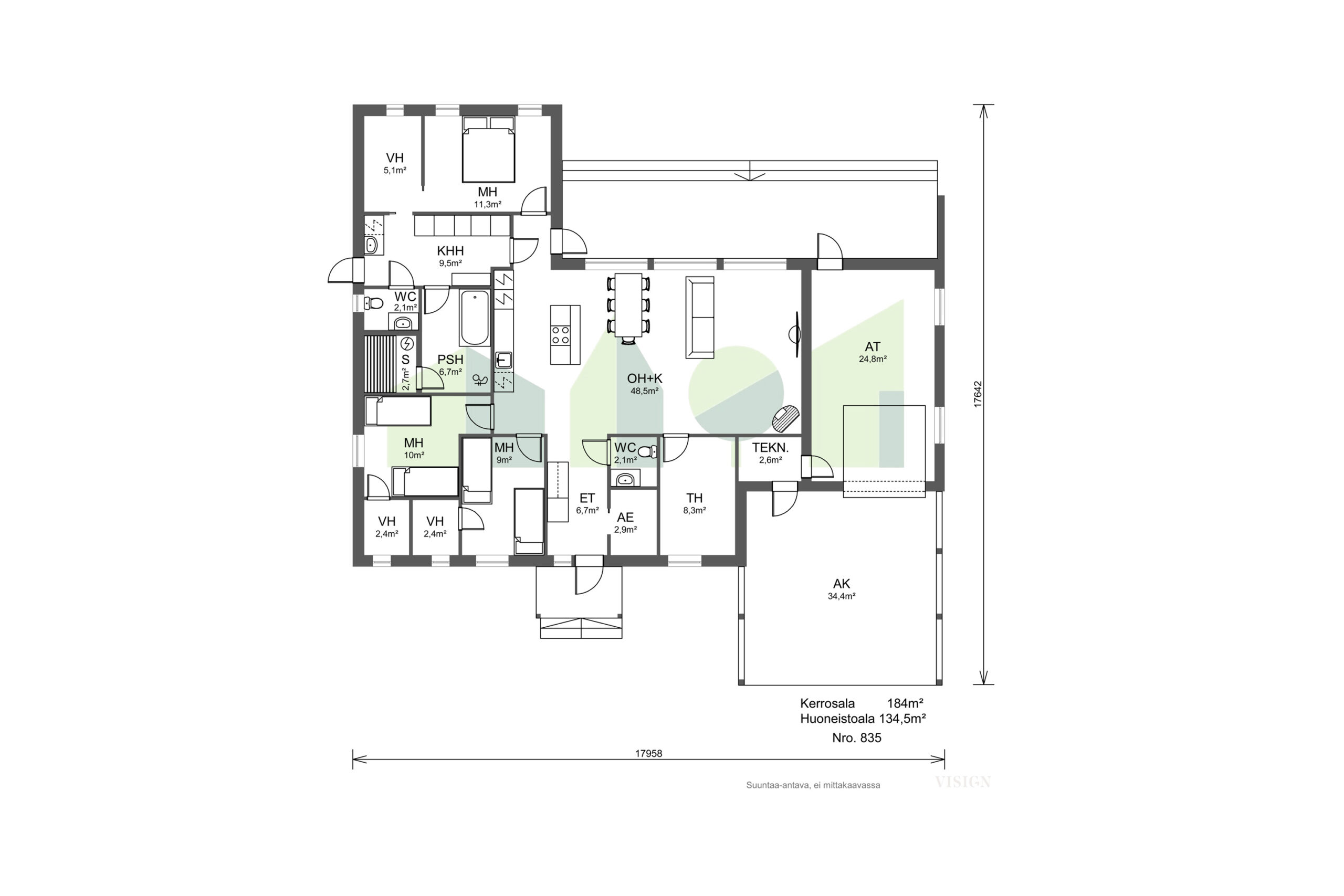
835

Tämän kohteen kategoriat: Yksilölliset