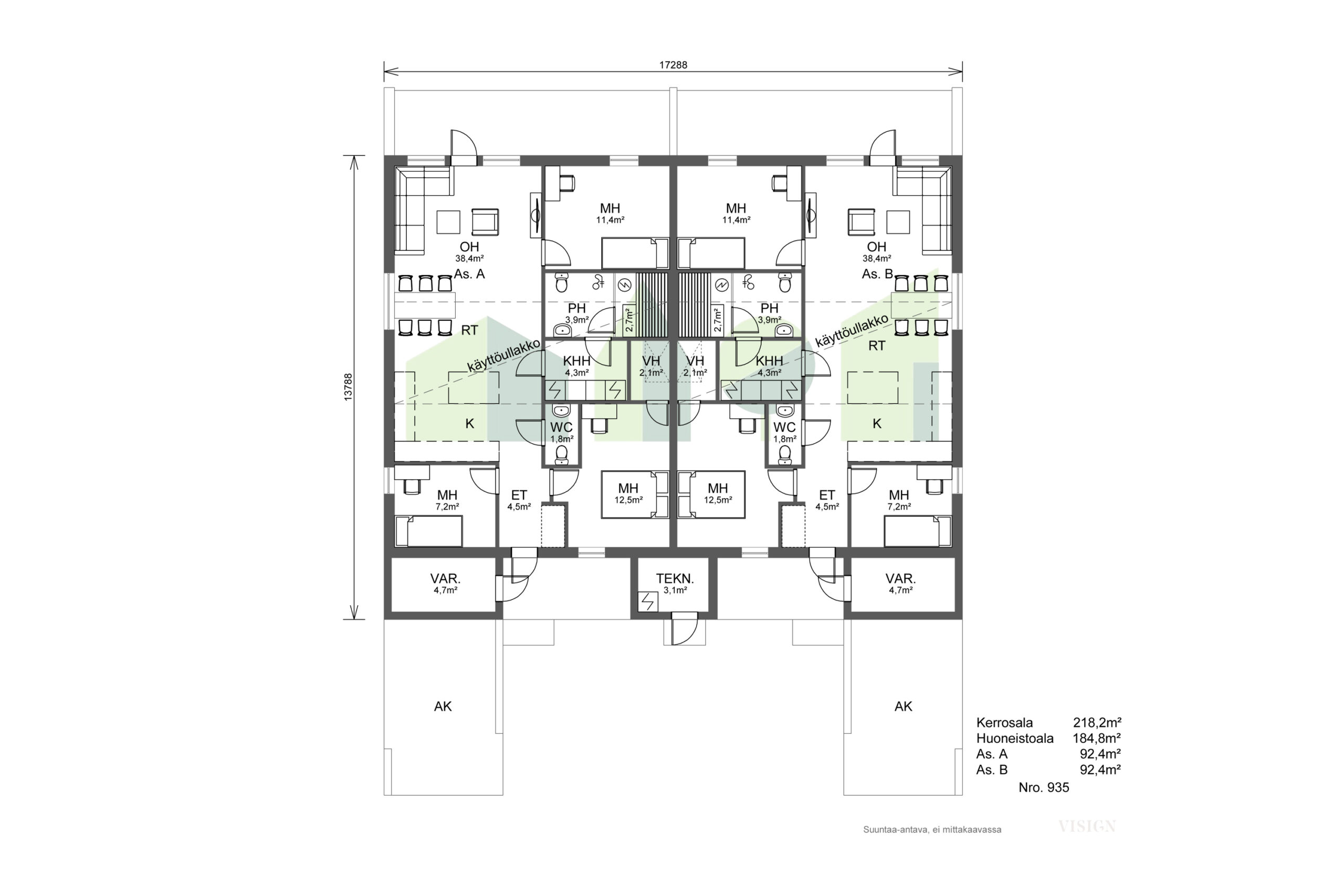
Etusivu » Paritalot » 935

935

Tämän kohteen kategoriat: Paritalot